防爆工業除濕機廠家
微信:133-6050-3273
手機:133-6050-3273
郵箱:
地址:廣東深圳坪山區青松西路8號鴻合科技園

轉輪除濕機根據工作原理的不同,不一定都采取蒸汽加熱。轉輪式除濕機原理,制冷方式可為直膨式和表冷式,再生加熱方式可為蒸汽加熱、電加熱、熱水加熱、直接/間接燃氣等加熱方式。直澎式即為機組本身自帶壓縮機,因其制冷系統中液態制冷劑在其蒸發器盤管內直接蒸發膨脹實現對盤管外的空氣吸熱而制冷,直膨式轉輪除濕機組不...
了解詳情
除濕機廠家經常說空氣相對濕度怎樣怎樣的,要買除濕機得計算相對濕度。那么相對濕度是什么?為什么在除濕機廠家眼里那么重要?相對濕度是空氣中水分的量,與空氣在該溫度下“保持”的量相比。當空氣容納的水分到達一定溫度環境時,它會凝結成露水。在確定除濕需求時,相對濕度非常重要,因為它可以讓您在任何給定時間點正確...
了解詳情
醫院,治病救人的地方,要想病人快速回復健康,那么就要給病人提供一個健康舒適的康復環境。潮濕,是絕對不允許出現的,畢竟很多潮濕的地方是病菌最容易滋生的地方。那么,對于醫院,有哪些科室是堅決不允許有潮濕現象呢?這些科室是必須嚴格控溫控濕。說到控濕控溫的科室,首先肯定想到手術室。通常來說手術室是需要開刀救...
了解詳情
今年“入伏”后,北京的空氣越來越潮濕。高濕度的天氣如何保證食品安全呢?國家食藥監局提醒公眾,“伏天”的氣候條件非常適宜各種微生物的生長,一次吃不完的食物一定要低溫保存。專家提醒消費者,購買食材后應清洗干凈,并盡快燒熟食用,一次吃不完的食物要及時放到冰箱冷藏或冷凍,再食用時應徹底加熱。放在冷藏室的水產...
了解詳情
有很多支氣管炎患者在夏天溫暖、潮濕的季節,不知不覺地患支氣管炎,因為夏天是支氣管炎的高峰期,我們必須采取預防措施。步驟/方法:1、夏天,很容易有一些有害的東西,如霉菌等。如果我們不注意它,我們就會患支氣管炎。我有一個朋友不知道支氣管炎。2、在平時的專家也告訴我們,在夏天是一個高發病率的季節,一些疾病...
了解詳情
當你把東西放入存儲器時,你想把它拉出來就像放入它時一樣好。因此,你需要一個策略來減少霉菌和霉菌的風險。這里有六個提示,以幫助保護您的衣物,槍支,藝術品,書籍和其他不含水分的物品。1.存放前的清潔和干燥物品污垢會刮傷或留下頑固的薄膜,從而損壞物品。同樣,食物碎屑可以吸引嚙齒動物或其他害蟲。由于存在這些...
了解詳情
開關室內的高濕度會造成多種破壞性影響。當由于外部(天氣)或內部(空調)因素而導致溫度突然變化時,會導致開關設備表面上的濕氣凝結。開關設備表面的冷凝水分對開關設備不利。水分可能凝結在開關設備絕緣體表面上,導致其吸收水分。水分會導致灰塵顆粒變粘,在開關設備表面形成半導體薄膜。此外,如果開關室位于高密度交...
了解詳情
優質的產品往往需要有一個良好的生產環境。在高新技術發展的今天,電子器件顯得格外重要。電子生產作業,對廠房車間內部的要求嚴格,特別要控制好環境的溫濕度、潔凈度,因為電子器件、印刷電路板、元器件和數據對靜電放電高度敏感。靜電放電是指具有不同靜電電位的物體互相靠近或直接接觸引起的電荷轉移。靜電放電發生在不...
了解詳情
皮革干燥中的水分問題皮革鞋底像其他有機材料即,木材,紙等是高度吸濕性的,在處理過程中或儲存過程中往往會吸收周圍空氣中的水分。皮革鞋底吸收的多余水分導致微生物活性增加。當相對濕度高于40%時霉菌,霉菌和真菌萌發。微生物的生長對皮革等材料是有害的,因為它不僅會導致分解,而且還會機械地削弱。一般建議:預干...
了解詳情
室內溜冰,冰上曲棍球和冰壺溜冰場中的凝結,霧氣和不舒適的氣氛是濕度/濕度的結果。由于冰面趨于冷卻,它開始放棄水分,即開始出汗。這導致金屬和霉菌腐蝕,真菌生長。等等。由于冷凝水的滴落,冰的質量使得滑冰表面不均勻并且不安全。不受控濕度的影響霉菌,霉菌和真菌生長導致基礎設施腐蝕不均勻的滑冰表面導致致命的跌...
了解詳情
除濕機在如今的生活中很常見,除濕機不僅在家庭中有應用,而且在工業上的醫用更為廣泛。但是大家對于烘干房專用除濕機又了解多少呢?不要擔心,跟隨本文進行系統的了解一下吧,相信能夠幫助到大家。烘干房除濕機除濕機是制冷空調家庭中的一個小成員。目前全球除濕機的主要產地集中在意大利、日本和中國臺灣等地,中國在全球...
了解詳情
濕度控制在紡織加工中的重要性在我們的日常生活中,我們周圍空氣的濕度極少值得討論,除非我們在桑拿浴室放松身心,或在赤道附近度假。但是,在紡織品加工過程中,濕度比較多的問題并不多。處理錯了,可能造成停止生產,損壞機械和傷害員工。處理好了,您可以最大限度地提高產品重量,提高質量和提高機器速度。空氣濕度測量...
了解詳情
在氣候濕度較高的環境中,家里經常會發霉,特別是各類衣物等生活用品。衛生間和廚房相對更加潮濕的地方,墻壁尤其墻角位置更是霉菌頻繁出現的地方。家里各處都有可能成為霉菌的集中據點,一旦發霉就額外鬧心。處理不當的話,會造成經濟上的損失,甚至威脅到家人的身體健康。因此,家里的防霉工作萬萬不能大意。采取怎樣的措...
了解詳情
調溫除濕機用蒸發器來給空氣降溫除濕,并回收系統的冷凝熱,彌補空氣中因為冷卻除濕時散失的熱量,是一種高效節能的除濕方式,已經廣泛應用于國防工程、人防工程、煙草及石化行業、地鐵車站、航天領域凈化工程、實驗室、電訊器材室、檔案室、食品房、制藥或膠片車間、特種玻璃制造、糧食、木材等的除濕干燥和高濕空間的除濕...
了解詳情
航空工業中的濕度控制和水分去除對于保護整體和零件至關重要。航空工業中的應用非常多樣化,包括露點控制和相對濕度。例如,需要40%的相對濕度(RH)以消除在飛機的生產,儲存和操作期間的腐蝕,腐敗和損壞。對于其他應用,可能需要通過控制露點以防止腐蝕來確保不形成冷凝。我們在這個行業遇到的一些問題包括:航空電...
了解詳情
現在,很多業主在進行地面裝修的時候會考慮用木地板。木地板有溫潤柔和、自然宜人、隔音、腳感舒適、防滑安全等優點,被越來越多的消費者所喜愛。選用木地板,經常會出現木地板起翹的問題。木地板起翹最重要的一個原因是安裝環境過于潮濕。如果房間內濕度過高,就會導致地板發生不規則的膨脹從而起翹。因此,不從根本上解決...
了解詳情
有很多支氣管炎患者在夏天溫暖、潮濕的季節,不知不覺地患支氣管炎,因為夏天是支氣管炎的高峰期,我們必須采取預防措施。步驟/方法:1、夏天,很容易有一些有害的東西,如霉菌等。如果我們不注意它,我們就會患支氣管炎。我有一個朋友不知道支氣管炎。2、在平時的專家也告訴我們,在夏天是一個高發病率的季節,一些疾病...
了解詳情
一個可能會損害你的健康和房子的問題現有地下室的水分問題非常普遍,但往往不被理解或妥善處理。在一個很少使用的地下室和上面的生活空間分開,這可能不會有很大的問題。但是,明尼蘇達州的大多數地下室都通過管道或其他開口與房屋的其余部分相連。另外,地下室越來越多地被用作完成的生活和臥室空間。在這些情況下,潮濕問...
了解詳情
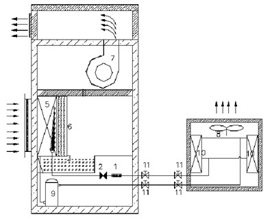
工業除濕機除濕工藝流程圖讓我們來了解下一個除濕器的技術。除濕機工作流程轉輪除濕器的工作過程可分為幾個部分:預冷/預熱(可選部分)-轉輪除濕-后冷/后熱(可選部分)預冷/預熱:使用冷凍水降低空氣的溫度,使空氣在冷卻過程中,相對濕度逐漸接近飽和狀態,在要求的溫度下,高于空氣溫度的飽和狀態會沉淀出多余的水...
了解詳情
隨著人們生活水平的不斷提高,人們對游泳、桑拿房等休閑場所的環境提出了更高的要求。控制游泳館、水療中心等室內空氣的溫濕度是一個難題。一座中型游泳池每天蒸發出的水量約有1噸,一個4平方米的水療中心每小時蒸發近6升的水,這相當于20人進行激烈騎自行車運動。高濕空氣不僅使人感到悶熱不舒服,也會對館內建筑及裝...
了解詳情